


























































Hunter
Nestled along the picturesque Truckee River, this charming craftsman cabin offers a perfect blend of rustic elegance and modern comfort. With its beamed wooden ceilings, exquisite granite flooring, and rich wooden finishes, the ambiance here is warm and inviting. Located in the heart of Olympic Valley, just a seven-minute drive from the renowned Palisades Resort and a stone’s throw from Alpine Meadows, Hunter is an ideal retreat for both avid skiers and those seeking a tranquil escape in nature. Hunter's thoughtful design makes it a haven for entertainment and relaxation. The spacious backyard is perfect for stargazing with a cozy blanket and a drink in hand, while amenities such as a table tennis table, poker table, skeeball, BBQ, and an outdoor fire pit ensure endless fun for family and friends. Whether toasting marshmallows under the starry sky or enjoying a lively game night indoors, every moment at this secluded cabin is crafted for memorable experiences.
Our promise
We've reviewed thousands of homes and approve only the best. Each one is professionally managed and vetted for comfort and style, raising the bar for every stay.
Amenities
Elevate your stay with add-on services
Book a home, then customize your experience. From ski delivery to pre-arrival groceries, we coordinate everything you need so you can make memories on the mountain and stories by the fire.
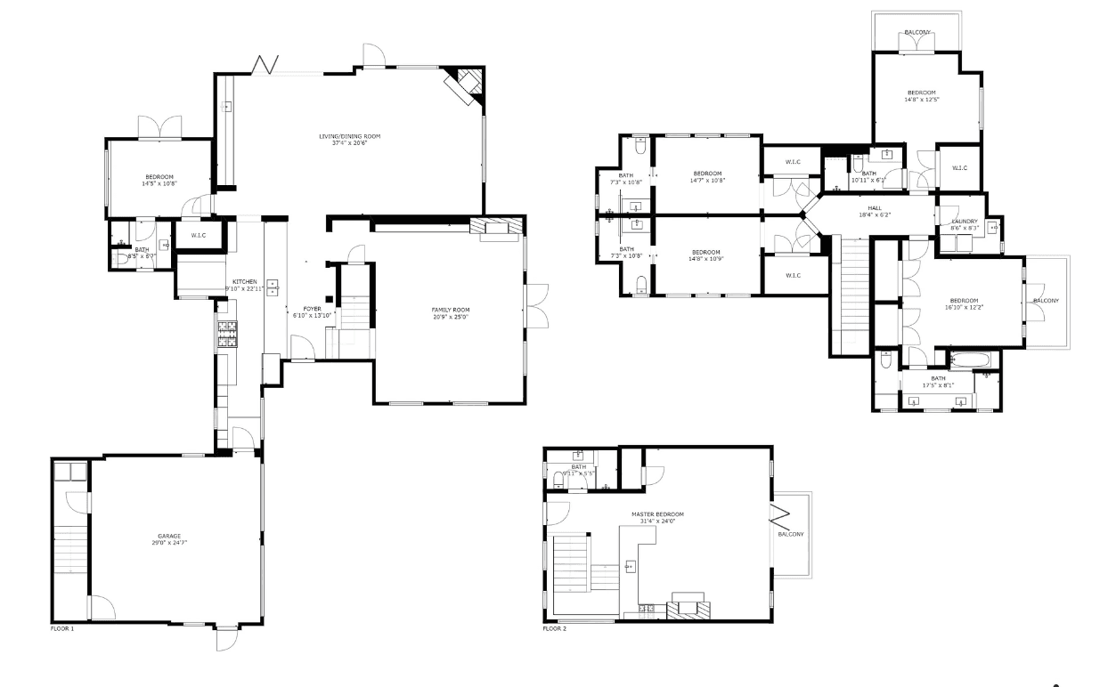
Bedroom details
Location
Inside the destination
- Located in Olympic Valley, just a 7-minute drive from Palisades Rosert and close to Alpine Meadows at Palisades. - Nearby Activities: Burton State Creek Park, NorthStar Resort, Pole Creek Trailhead (Biking), PlumpJack Cafe (Top Rated Restaurant), Moody's Bistro and Bar (Live Music), Action Water sports (Jet Ski on Lake Tahoe).
Parking information
- There are eight spots in the driveway. - Two-car garage. - On-street parking is prohibited.
We're here to help
Whether you have questions on this home or want us to source other options, we're a message away!
Policies
Cancellation policy
Plans change, we get it.
Enjoy peace of mind when booking with KEY.co.
95% Refund: Receive a 95% refund when you cancel your reservation at least 60 days before check-in.
45% Refund: Receive a 45% refund when you cancel your reservation at least 21 days before check-in.
No Refund: Reservations canceled 59 days or less before check-in are not eligible for a refund.
Refunds subject to a 5% processing fee of the total.
Things you need to know
Each room is outfitted with linens, towels, fluffy pillows, and comforters.
A high chair can be provided upon request with at least 24 hours ' advanced notice.
During the winter months, all outdoor furniture is unavailable.
This home does not have strong wifi due to limited services in the area.
This home does not have AC.
This home has a casita that features a small kitchen and king bed.
Our occupancy includes an additional two beyond bed count. Trifold floor mattresses and additional linens can be provided upon request.
Restrictions
- Minimum night requirements vary by home and time of year.
- This home has a maximum overnight occupancy of 12 guests and a maximum daytime occupancy of 18 guests.
- Please do not leave any garbage, sunscreen, chapstick, or food in your cars as this is an extremely active bear area.
- Violation of the no-smoking policy will result in a $500 fee for additional cleaning and other related costs, in addition to the Guest being responsible for any damages attributable to smoking beyond said fee.
- Please be considerate of your neighbors and mindful of noise levels. Noise violations may result in fines. Please also note we do not provide speakers or sound systems.
- Please be aware that you may be fined due to the following reasons. Glass on the pool deck. Loud noise/music complaints. Pets off-leash.
- Guests will not exceed the stated occupancy limits in the reservation without prior approval. No unauthorized Guest and/or visitor may stay overnight. In the event that you exceed the maximum occupancy number of the Property, you will be liable and pay a penalty fee of $500 per person for every person over occupancy.
- Guest and registered guests will not use the Property for any commercial purpose, including professional filming and photography purposes at the Accommodation without prior written permission.
- Guests are only granted access to the premises within property lines. Accessing neighboring properties is strictly prohibited. Guests are responsible for any fines and penalties resulting from trespassing.
- Guest will not make any alterations in or about the Property including, but not limited to, moving furniture, painting, wallpapering, adding or changing locks, installing antenna or satellite dish(es), placing signs, displays or exhibits or using screws, fastening devices, nails or adhesive materials anywhere on the Property.
- To prevent any damage to the HVAC system, the A/C thermostat may not be lowered below 72 degrees Fahrenheit at any time during your stay at the Property.
- All trash must be taken out and placed in trash bins. If not possible to place the trash in the bins, please place the trash bags alongside the inside garage wall. Trash is picked up once a week, if the bins are full please let our Customer Support team know.
- Guests may not receive mail or packages at the Property. We do not have access to the mailboxes at many of our Properties and cannot retrieve mail for you or your guests. We are not liable for items shipped to the Property that are lost, stolen or otherwise not received.
- Please note we do not provide speakers or sound systems.
You may also like
Discover more luxury vacation rentals in CA | North Lake Tahoe. All curated by people, not algorithms.

Open Air at Palisades
CA | North Lake Tahoe

Compass Luxury Lodge at Northstar
CA | North Lake Tahoe

Knotty and Nice
CA | North Lake Tahoe

Hawk's Peak in Tahoe Donner
CA | North Lake Tahoe





