







































Vanderbilt Residence
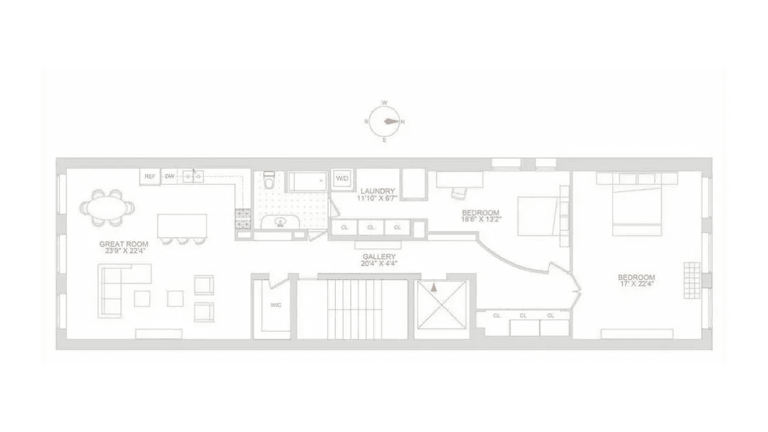
Nestled in the heart of Tribeca, a neighborhood renowned for its enchanting cobblestone streets and vibrant cultural scene, stands a boutique luxury condominium that redefines urban living. This exquisite residence spans approximately 1,950 square feet, offering a blend of classic New York loft aesthetics and modern luxury. The two-bedroom, one-bathroom abode is designed with an eye for detail, featuring key-locked elevator access that opens directly into a stunning loft space. Here, exposed brick walls and oversized rooms create an ambiance of sophisticated charm, enhanced by the natural sunlight streaming through three south-facing oversized windows. The great room, a generous amalgamation of living, dining, and kitchen areas, is a testament to both style and functionality. The kitchen, a culinary dream, is equipped with a center island, bar seating, and high-end appliances including a vented gas stove, refrigerator, and dishwasher. A large walk-in pantry adds to the convenience, ensuring that everything one needs for a gourmet cooking experience is at hand. This attention to detail extends throughout the property, with each residence boasting a fully-stocked chef's kitchen, Nespresso machines for the perfect morning brew, and luxury linens for ultimate comfort. Bathing experiences are elevated with Malin and Goetz soaps, adding a touch of indulgence to every day. The living spaces are thoughtfully equipped with Roku-powered TVs, offering complimentary access to Netflix, Hulu + Live TV, and Disney+, ensuring entertainment is always a click away. Beyond the allure of its interiors, this property is tailor-made for the modern traveler. Each unit features a dedicated workstation, perfect for those embracing remote work or seeking a creative nook. The convenience is further enhanced by an in-unit washer/dryer, making long stays as comfortable as they are memorable. For pet lovers, the possibility of bringing along furry companions (subject to approval) adds to the appeal. This Tribeca gem not only offers a luxurious stay but also immerses its residents in one of New York's most desirable areas, promising an experience that is as unforgettable as the city itself.
Our promise
We've reviewed thousands of homes and approve only the best. Each one is professionally managed and vetted for comfort and style, raising the bar for every stay.
Amenities
Bedroom details
Location
Inside the destination
- Located in Tribeca, NY.
We're here to help
Whether you have questions on this home or want us to source other options, we're a message away!
Policies
Cancellation policy
Plans change, we get it.
Enjoy peace of mind when booking with KEY.co.
96% Refund: Receive a 96% refund when you cancel your reservation at least 61 days before check-in.
No Refund: Reservations canceled 60 days or less before check-in are not eligible for a refund.
Refunds subject to a 5% processing fee of the total.
Restrictions
- Minimum night stay requirements vary by home and time of year.
- The Property is for the sole use as a remote work and vacation residence by listed Occupants and their invitees and guests.
- Property Management recognizes that the Property is being used for business and/or group travel, which may include company outings, birthdays, reunions, or other events as part of the experience. However, the Property may not be used for any parties (a) to which outside guests exceed 12 without express written approval, (b) at which noise or loud music may be heard by neighbors or is in violation of any local regulations, (c) parties with music or noise during quiet hours, or (d) parties that are otherwise disruptive to neighbors or the neighborhood. This Property is not intended to be used for any events, group gatherings, or parties.
- The Property will be delivered to the Occupant in a professionally cleaned condition. Upon termination of occupancy, Occupant will deliver the Property in the same condition as delivered, less ordinary wear and tear. If Occupant does not return the Property in the same condition an additional cleaning and/or maintenance fee will be charged to Occupant as an Additional Charge. The cleaning fee paid by Occupant is for three hours of cleaning after Occupants’ departure; Occupant will be charged where additional cleaning is required.
- To prevent any damage to the HVAC system, the A/C thermostat may not be lowered below 68 degrees Fahrenheit at any time during your stay at the Property.
- Pets are not allowed unless agreed upon in writing. Damage or cleaning attributable to pets shall be charged to Occupant as an Additional Charge, together with a one-time $300 charge per stay for reservations 30 nights or longer.
- No smoking is allowed anywhere on the Property. Damage or cleaning attributable to smoking shall be paid by Occupant as an Additional Charge of no less than $500.
- Firearms shall not be allowed on the premises. Occupant agrees that Fireworks and other hazardous materials shall not be used in or around the property.
- Occupant shall not make any alterations in or about the Property including, but not limited to, moving furniture, painting, wallpapering, adding or changing locks, installing an antenna or satellite dish(es), placing signs, displays, or exhibits, or using screws, fastening devices, nails, or adhesive materials anywhere on the Property.
- Occupant shall not video/audio record or take photographs for commercial purposes at the Property without prior written permission.
- Swimming pools, hot tubs, and spas, docks, exercise equipment, recreational equipment, and any accessory or related equipment, while providing exercise, recreation, and relaxation (collectively, “Recreational Equipment”), also can be dangerous.
- People (as well as pets) can be severely injured or drown if the pool, hot tub, spa, or any body of water or other Recreational Equipment is not properly used.
- No diving into the pool or hot tub or spa.
- No intoxicated persons may use the pool or hot tub or spa.
- No use of glass containers by the pool.
- No one should use the pool or hot tub or spa alone.
- Children may never be left unattended when they may gain access to the pool, hot tub, or spa, not even for a few seconds.
- If the Property is part of an HOA or rental complex, the following also apply: The pool, hot tub, or spa may only be used during posted hours.
- Adult supervision is required for anyone under the age of 14.
- All drinks must be served in unbreakable containers.
- No alcoholic drinks are allowed in the pool area, hot tub, or spa.
- No excessive noise — please be considerate of your neighbors. Outdoor music and noise must be kept under 60 dBA at all times and is not permitted after 9pm.
- Users must shower prior to using the pool, hot tub, or spa.
- Use the pool safety equipment only in case of emergency. HOA or House Rules, if applicable, will supplement or supersede these rules. No Lifeguard will be on duty - You swim at your own risk.
- Guests are subject to a $1,000 fine and/or removal and reservation may be cancelled with no refund upon one or subsequent noise complaints.
- Property management reserves the right to modify the above fines and/or charge additional fines based on the location of the Property and severity of guest violation(s).
You may also like
Discover more luxury vacation rentals in NY | New York City. All curated by people, not algorithms.

Riverbank II
NY | New York City

Riverbank I
NY | New York City

Prince
NY | New York City

Madison Place
NY | New York City